The Alora Hamptons Facade
Details
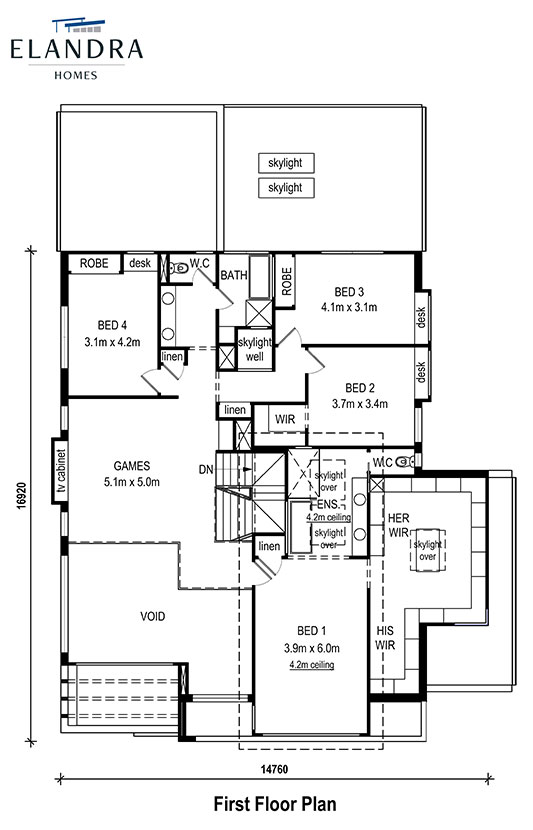
- Large open plan living with a popped-up roof to provide a 3.6m high ceiling over the family room.
- Light filled areas captured by two storey void and smart positioning of glazing.
- Integration of indoor and outdoor areas that seamlessly flow off the main kitchen and family rooms.
- Large kitchen with ample cupboards and draws, stone top and waterfall edges with quality European appliances.
- Conveniently located butler’s pantry including quality European appliance and sliding window opening out to BBQ servery.
- Conveniently located theatre room for this family movie nights.
- Guest bedroom to the ground floor with wardrobe and private access to the powder room.
- Integrated study and office area for work from home convenience.
- Spacious bedrooms with a large upstairs games room.
- Large Master bedroom featuring a very large fully integrated walk-in wardrobe and popped up roof over bedroom and ensuite to provide 4.2m ceiling heights.
- Smart 3-way bathroom to maximise usage for the family.
- High quality of fixtures and fittings throughout.
- Flexible design and inclusion options tailor made to suit individual clients, site and council requirements all integrated with construction budget.





